Indisponibil
Casa la rosu cu teren 800 mp si utilitati Harman
88,500 €
Simuleaza creditaura popa
Luni - Vineri: 10:00 - 18:00Vrei sǎ vinzi o proprietate ca aceasta? Contacteazǎ-ne pentru o evaluare!
Detalii
- ID proprietate:1356228
- Pret:88,500 €
- Suprafata construita:225 m²
- Nr camere:5
- Suprafata utila:167 m²
- Nr. et. cladire:1
- Dormitoare:4
- Bai:2
- An constructie:2015
- Tip proprietate:Casa/Vila
- Disponibilitate:Imediat
- Terase:1
- Suprafata terasa:36 m²
Descriere
PROPRIETATE TRANZACTIONATA !!!
Compania STARTIMOB va propune spre achizitie, in sistem de Reprezentare Exclusiva si cu COMISION 0% din partea cumparatorului, un imobil de tip casa individuala unifamiliala, aflata in constructie, cu teren total de 800 mp, situata in jud.. Brasov, loc. Harman, pe str. Matei Basarab .
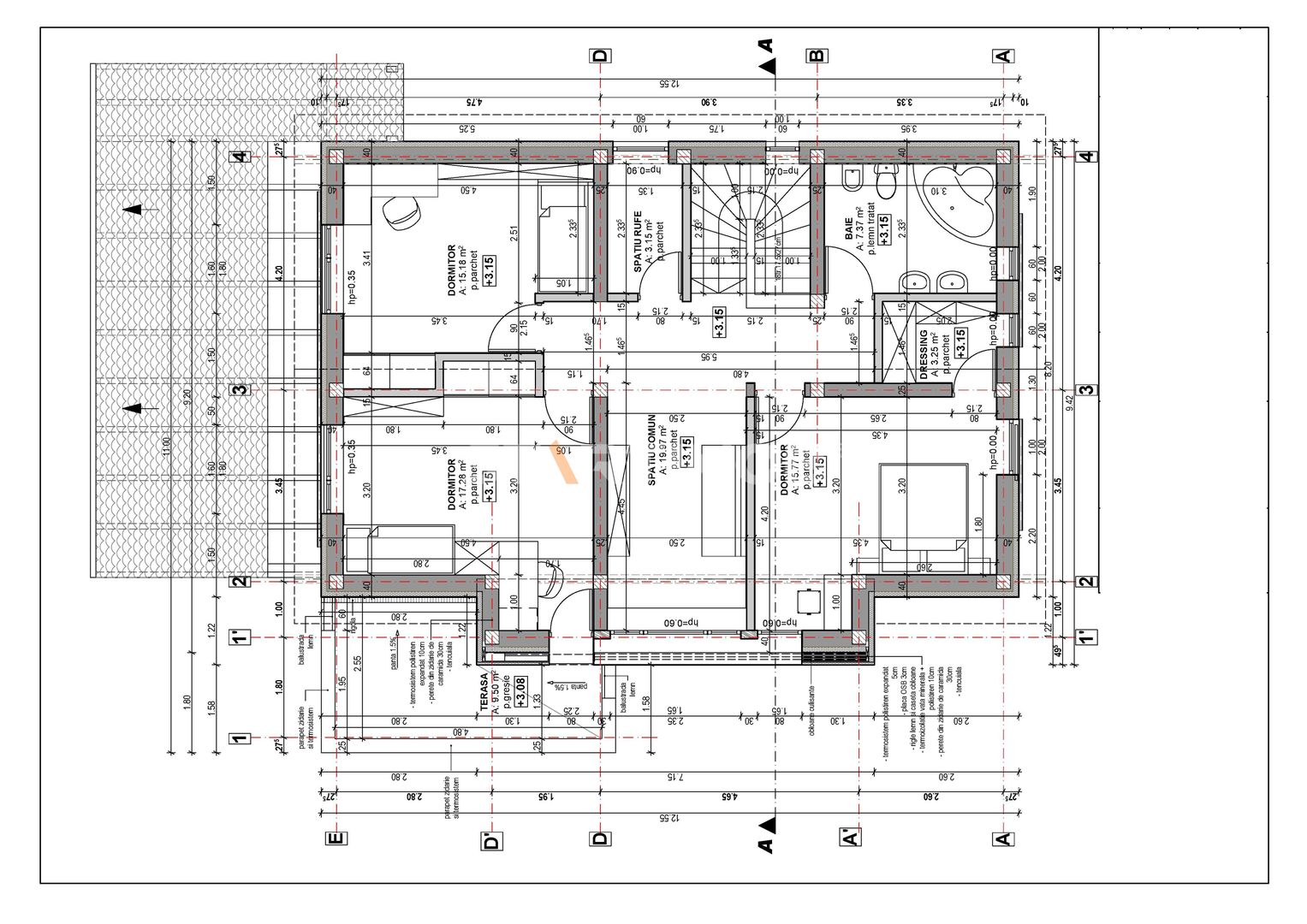
Proprietatea este de tip P+M, are o amprenta la sol de 114 mp , o suprafata utila totala de 167 mp si o arie construita de 225 mp, front stradal de 22,32 ml. .
Casa a fost construita pana la acest stadiu in regie proprie, dispune de utilitati racordate, este imprejmuita, acoperita cu tigla, construita din zidarie cu caramida Porotherm de 30 cm si fundatii cu plansee din beton armat, cu o compartimentare utila si functionala astfel :
la parter regasim o terasa de acces de 6,64 mp, hol (11,68 mp), un living cu dining (27,54 mp) open space cu bucataria (17,78 mp), camara (3,17 mp), baie(5,83 mp), birou ( 10,07 mp), camera centralei (3,61 mp), iesire pe terasa de 36,04 mp , iar la etaj regasim 3 dormitoare decomandate ( 17,28 mp, 15,18 mp, respectiv 15,17 mp), dressing (3,25 mp), spalatorie (3,15 mp), baie (7,37 mp), spatiu comun de tip living de 19,97 mp si terasa de 9,50 mp .
Pentru detalii despre planuri, schite, autorizatii, procese verbale de receptie , certificate de urbanism, racorduri de utilitati, instalatii, etc., ne puteti contacta telefonic in vederea stabilirii unei intrevederi .
Pret vanzare : 88500 Euro .
Detalii la nr de telefon : 0733.092.093, persoana de contact -Aura Popa.
Adresa
- Localitate:Harman
- Zona:
Calculator credit ipotecar
Suma creditabila estimata (RON):
Suma creditata (RON)
Rata dobanzii
Rata lunara incepand de la (RON)
Suma totala de restituit (RON)
Suma totala de restituit credit vechi (RON)
Suma totala de restituit dupa refinantare (RON)
Suma economisita dupa refinantare (RON)
Rata lunara credit vechi (RON)
Rata luna dupa refinantare (RON)
Primeste o oferta personalizata, GRATUIT!
Aceste calcule sunt estimative si se bazeaza pe ofertele aflate in portofoliul TMA (The Money Advisor) pentru creditele in RON.
Pentru o solutie adaptata nevoilor tale de finantare, completeaza formularul de contact.
Hai sa incepem