Indisponibil
Spatiu comercial stradal Brasov
2,500 € / lună
aura popa
Luni - Vineri: 10:00 - 18:00Vrei sǎ vinzi o proprietate ca aceasta? Contacteazǎ-ne pentru o evaluare!
Detalii
- ID proprietate:2801971
- Pret:2,500 € / lună
- Suprafata construita:223.86 m²
- Nr camere:3
- Suprafata utila:160 m²
- Nr. et. cladire:7
- Etaj:Parter
- Bai:3
- An constructie:1985
- Tip proprietate:Spatiu Comercial
- Compartimentare:Partial compartimentat
- Disponibilitate:Imediat
Descriere
PROPRIETATE INDISPONIBILA !!!
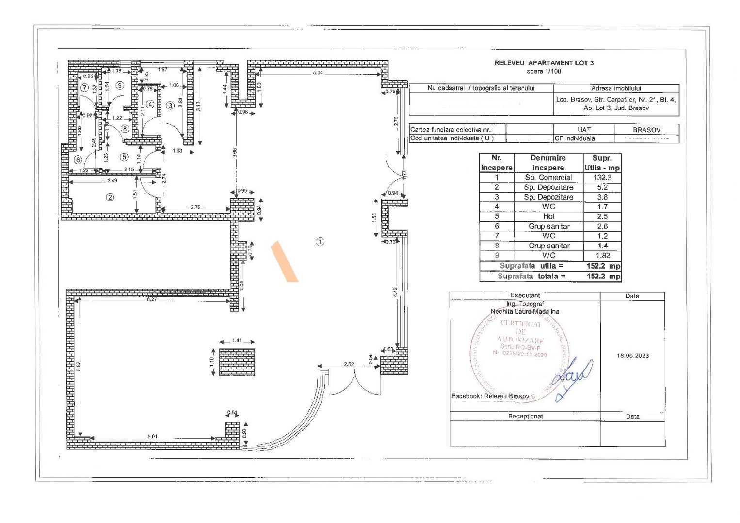
STARTIMOB va propune spre inchiriere, un spatiu comercial cu multiple posibilitati de exploatare situat pe str. Carpatilor nr 21, zona cu multe ansambluri rezidentiale noi precum Cosmopolit Magnolia, Cosmopolit Zenit, Sunnyville, Carpatilor Residence, Alphaville si Karpatenhaus Residence, etc.
Spatiul se afla la parterul unui bloc anvelopat construit in 1985, de tip P+7 E, cu acces dublu direct din exterior avand 2 intrari separate fata de zona rezidentiala, are o suprafata utila de 152 mp si o arie desfasurata de 223,86 mp.
Compartimentarea acestuia este una perfect adaptabila mai multor tipuri de activitati economice cu exceptia HORECA, fiind compus din windfang, receptie, bucatarie, sali de mese, spatii depozitare, 3 grupuri sanitare si destinatia de spatiu comercial in cartea funciara.
Spatiul poate fi amenajat in functie de conceptul de business al chiriasului, beneficiaza de toate utilitatile separate ( apa, gaz, current 380V, canalizare), dispune de tamplarie PVC cu geam termopan, bai utilate si posibilitate de acces secundar pentru marfa si se afla momentan in curs de modernizare.
Performanta energetica: - Clasa Energetica/ C
-Consumul anual scpecific de energie/ 219,12
-Indice de emisii echivalent CO2/ 46,62
-Consum anual specific de energie din surse regenerabile/ 0
Proprietatea are acces la toate facilitatile urbane : statie de transport in comun, scoli si gradinite, farmacii, banci (ING, Raiffeissen), supermarket-uri precum Penny Market, LIDL, Carrefour, Mega Image, cabinete medicale, de analize de laborator si clinici dentare (SYNLAB, Centru de Diabet, Neurodent, EsDent, Dentalux, Estetic Dent, Clinica Neomed, etc, .
Proprietatea este libera spre inchiriere si se poate viziona pe baza de programare telefonica ..
Pret inchiriere : 2500 Euro/luna.
Utilitatile se platesc separat in functie de consum.
Se solicita contract garantat minim 2 ani, chiria in avans pe prima luna si o garantie stabilita în cuantumul a cel putin 2 chirii lunare pentru buna desfășurare a contractului.
Detalii si vizionare la nr de telefon : 0733.092.093 , persoana de contact Aura Popa.
Adresa
- Localitate:Brasov
- Zona:Judetean